Section drawings detail Government office building dwg autocad file
Description
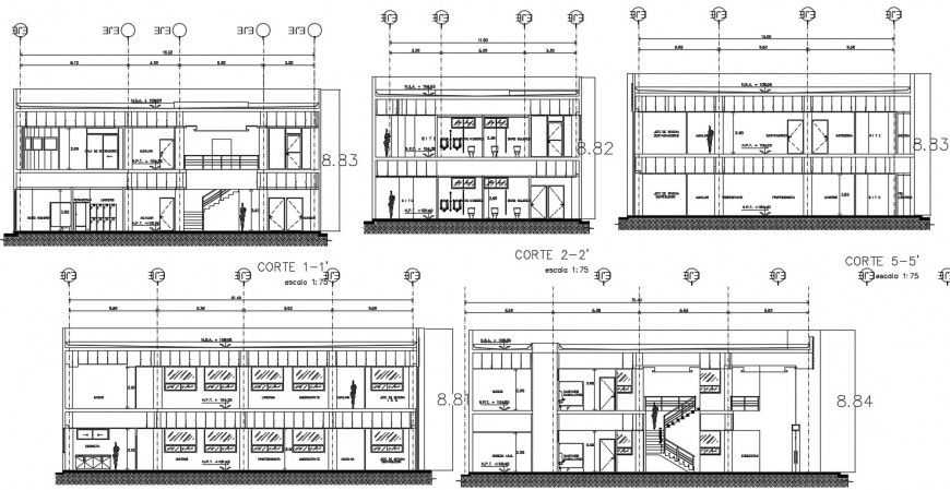
Section drawings detail Government office building dwg autocad file that shows building different sections dteials along with floor level details. Scale details of 1:75 and sanitary toilet details staircase details with other detail of building also included in drawings
Uploaded by:
Eiz
Luna

